Снежное
Пн-пт с 09:00 до 19:00, Сб-вс с 10:00 до 16:00

Продается дом в г. Торез ID: J206

Торез, улица Ленина, д.117
Площадь 91.4 м²
Этажи 2
Усачёва Регина Усачёва Регина
специалист по недвижимости
Показать телефон
QR
Ссылка на объект

Описание

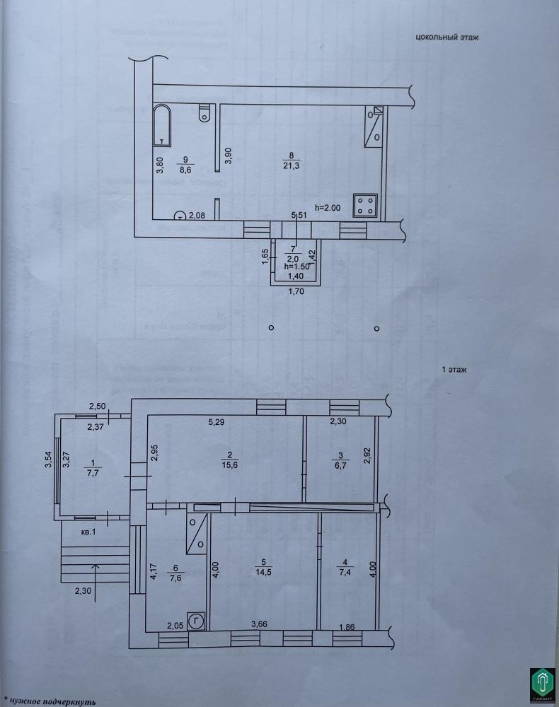
ПРОДАЁТСЯ двухэтажный дом 🏡 в г. Торез.

Адрес:  ул. Ленина

Общий земельный участок 19,5 соток
Общая площадь дома 91,4 кв.м
Дом каменный
Кухня 21,3 кв.м.
1 комната 15,6 кв.м.
2 комната 14,5 кв.м.
3 комната 6,7 кв.м.
4 комната 7,4 кв.м.
Окна металопластиковые. В доме установлен газовый двухконтурный котел, биметаллические батареи, полипропиленовые трубы. Удобства находится как в доме так и на улице, есть летний душ, в отличном состоянии. Есть 2 колодца, один зимний и один летний. Проблем с водой в доме нет. Так же имеется собственная канализация.
В кухне установлен водонагреватель. Имеется насос, и фильтр для воды, накопительная емкость.
Дом светлый и уютный.
Дом жилой, в который возможно заехать и жить. В хорошем состоянии надворные постройки, угольник, дровник. Сам двор чистый и аккуратный, уложен железобетонной шахтной затяжкой. Имеется большой гараж.
Рядом есть остановка общественного транспорта .
Не упустите шанс стать владельцем этого прекрасного дома!

Цена: 3 200 000 рублей.

Звоните, организую показ. Отвечу на все интересующие вопросы

☎️ +7 949 467 46 90 Регина

🔹 Проконсультирую по всем вопросам недвижимости.
🔹 Отвечу на всё интересующие вопросы.
🔹Юридическое сопровождение сделок с недвижимостью


Больше объектов недвижимости и эксклюзивных предложений у нас в группах ВК и Tg. Подписывайтесь!

https://vk.com/garantsnejnoe
https://t.me/garantsnejnoe
Подробнее

Характеристики

  • Тип недвижимости Дома, дачи
  • Населенный пункт Торез
  • Адрес улица Ленина, д.117
  • Тип объекта дом
  • Тип дома кирпичный
  • Общая площадь 91.4 м²
  • Площадь участка 19.5 сот.
  • Количество этажей 2
  • Материал стен Кирпич
  • Тип участка ИЖС
  • Санузел в доме
  • Душ В доме
  • Удобства В доме и на улице
Задать вопрос


Вас также может заинтересовать:
7
дом 81.4 м² на участке 10 сот.
Торез, улица Рабочая, д.86

2 500 000
  • Тип дома:монолит
  • Количество этажей:1
  • Материал стен:Кирпич
10
дом 94 м² на участке 6 сот.
Торез, улица Дуси Богатыревой, д.28

2 700 000
  • Тип дома:кирпичный
  • Количество этажей:1
  • Материал стен:Кирпич
9
дом 80 м² на участке 8 сот.
Торез, улица Вольская, д.69

2 100 000
  • Тип дома:кирпичный
  • Количество этажей:1
  • Материал стен:Кирпич

Мы используем файлы cookie, чтобы обеспечить вам наилучший доступ к нашему веб-сайту

Скопировано